471 Harris Street, Ultimo
Description
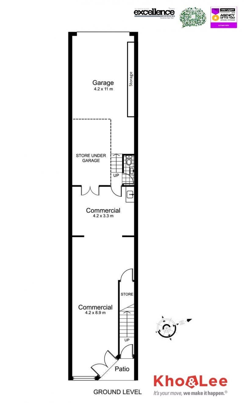
Modern Commercial Terrace - Ideal Office - Showroom - Medical Rooms - 97sqm incl 2 Car Lock Up Tandem Garage
This well maintained commercial terrace presents the ideal open work place in a central and easily accessible Inner City location. Suitable for a wide range of uses - offices, showrooms, medical. It also offers easy and valuable secure tandem parking for two cars. A must see!
Featuring:
* Area of 97sqm (approx)
* Suit Office, Showroom Retail, Medical, City base
* Versatile Space With Loads of Potential to Create the Perfect Working Environment
* Kitchenette, Toilet, Air-Conditioning
* Great Main Road Exposure, Perfect Street Frontage
* Tandem Two Car Lock Up Garage
* Front And Rear Access
* Ground Floor Only
* Side storage in the garage is not included
* Located Moments to UTS, Ultimo TAFE, Broadway Shopping Centre, Sydney Fish Markets, Darling Harbour and the CBD
* Easy Access to Main Arterial Roads with Airport , North, East and Western Road Links Close By
Contact Thanh Tran on 0450 958 914 for more information and to arrange your private inspection.
Available Now!
- Indicative photos only
Featuring:
* Area of 97sqm (approx)
* Suit Office, Showroom Retail, Medical, City base
* Versatile Space With Loads of Potential to Create the Perfect Working Environment
* Kitchenette, Toilet, Air-Conditioning
* Great Main Road Exposure, Perfect Street Frontage
* Tandem Two Car Lock Up Garage
* Front And Rear Access
* Ground Floor Only
* Side storage in the garage is not included
* Located Moments to UTS, Ultimo TAFE, Broadway Shopping Centre, Sydney Fish Markets, Darling Harbour and the CBD
* Easy Access to Main Arterial Roads with Airport , North, East and Western Road Links Close By
Contact Thanh Tran on 0450 958 914 for more information and to arrange your private inspection.
Available Now!
- Indicative photos only
